508-862-9000
222 West Main Street, Hyannis, MA
advisors@comrealty.net

Class A Furnished Office Suite for Lease

695 Attucks Lane, Hyannis, MA, USA

Details

Class A Furnished Office Suite for Lease

695 Attucks Lane, Hyannis, MA

Modern, Turn-Key Second-Floor Office Above Cape & Coast Bank

Commercial Realty Advisors is pleased to present a rare, newly renovated Class A office suite for lease at 695 Attucks Lane in Hyannis, located on the second floor above Cape & Coast Bank at the highly visible corner of Attucks Lane and Independence Drive.

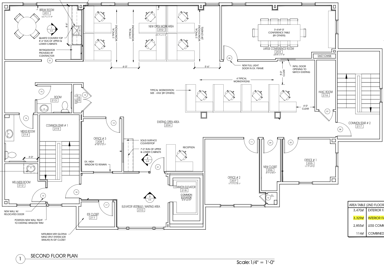
This ±2,855 SF, fully furnished, move-in-ready office offers a sleek, modern layout that is exceptionally hard to find on Cape Cod. The space is elevator-served, handicap accessible, and available for immediate occupancy.

Important Use Restriction: Because the space is located above Cape & Coast Bank, financial service and mortgage brokerage tenants are not permitted.


Lease Terms

  • $30.00/SF NNN – includes signage on Attucks Lane

  • $25.00/SF NNNwithout signage

  • Size: ±2,855 SF usable area

  • Condition: Fully furnished, move-in ready

  • Availability: Immediate


Prime Corner Location

695 Attucks Lane sits at the signalized corner of Attucks Lane and Independence Drive, two of Hyannis’ most heavily traveled commercial corridors. The building benefits from:

  • Excellent visibility

  • Easy access from Route 132, Route 28, and surrounding business districts

  • Strong professional office and medical presence in the immediate area


High-End, Recently Renovated Interior

The second floor has been completely modernized to create a bright, efficient, and professional workspace ideal for growing companies, regional offices, or Cape Cod headquarters.

The suite includes:

  • 10 modern cubicles in a large open bullpen area

  • Large meeting room seating 12

  • 3 private offices

  • Reception area

  • Large breakroom with cabinetry and counters

  • Two private bathrooms

  • Dedicated Wellness Room with:

    • Lockable door

    • Work surface and chair

    • Sink

    • Ideal for nursing mothers or wellness needs

  • Elevator lobby / waiting area

Share this Property!
  • For Sale or Lease: For Lease , For Lease NNN
  • Property size: 2855 +/- Sq. Ft.
  • Address: 695 Attucks Lane, Hyannis
  • Style: Bank Bldg/Office
  • Book/Page: C160354/0
  • Parcel ID: 295/021/B00
  • Zoning: IND
  • Condition: Fully furnished, move-in ready
  • Availability: Immediate
  • Year Built: 2001
  • Accessibility: Wheelchair Accessible via Common Elevator

Plans

Second Floor Plan

Attachments