508-862-9000
222 West Main Street, Hyannis, MA
advisors@comrealty.net

Multi-Unit Investment Opportunity Located in Downtown Hyannis

82 School Street, Hyannis, MA, USA

Details

Turnkey Supportive Housing Campus — Cape Cod Opportunity

 

Nestled in a strategic Cape Cod corridor, this ± 8,000 SF mixed-use building is fully configured to serve 33 clients in 20 private-bath bedrooms. With a commercial food-service kitchen, dining room, laundry, nurses’ stations, office suites, elevator access and solar-roof energy, the asset is operational from day one. Whether you continue the mission as transitional housing, convert to healthcare/rehabilitation, or incorporate workforce housing above the ground floor, the site is zoned in the MS (Medical Services) District — ideal for mission-focused use.

Property Highlights — 82 School Street, Hyannis, MA

A well-maintained ±8,031 SF mixed-use building in Hyannis’ Medical Services (MS) district, positioned one block from Cape Cod Hospital and the downtown business corridor.

Building & Site Features

  • ±8,031 SF mixed-use building currently configured for charitable/supportive housing

  • 20-bedroom layout with institutional/office infrastructure

  • Elevator-served facility with sprinkler system

  • Full commercial kitchen, dining area, nurses’ stations, multiple offices, and common areas

  • Laundry facilities and additional kitchenette spaces

  • Solar photovoltaic array (129 modules, installed 2018)

  • Updated roofing and 54 replacement windows (2018)

  • Paved parking area with asphalt surface

  • Wood-frame construction with asphalt shingle roof

  • Heating: oil-fired hot water; Cooling: central A/C

  • Located on 0.26 acres in the Hyannis MS district with mixed-use and medical allowances

  • Walking distance to Cape Cod Hospital, Hyannis Harbor, and Main Street Village


Assessment Summary (FY2025)

Category Value
Land Value $191,200
Building Value $823,700
Total Assessed Value $1,014,900
Use Code 9570 — Charitable Services
Zoning MS — Medical Services
Neighborhood Code CI09 — Hyannis
Lot Size 0.26 Acres
Gross Area ±8,031 SF
Year Built 1979
Condition / Grade Average / Grade C
Share this Property!

Plans

First Floor

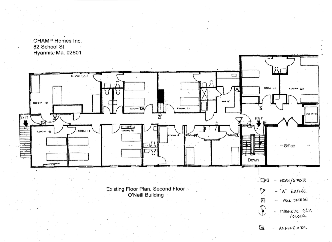
Second Floor

Basement Floor Plan

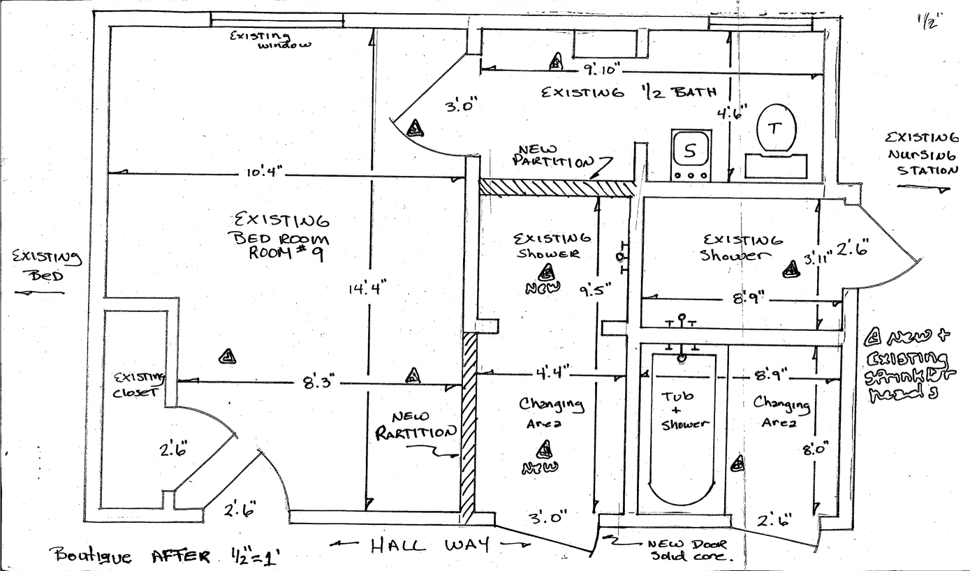
Existing Bedroom #9

Attachments