508-862-9000
222 West Main Street, Hyannis, MA
advisors@comrealty.net

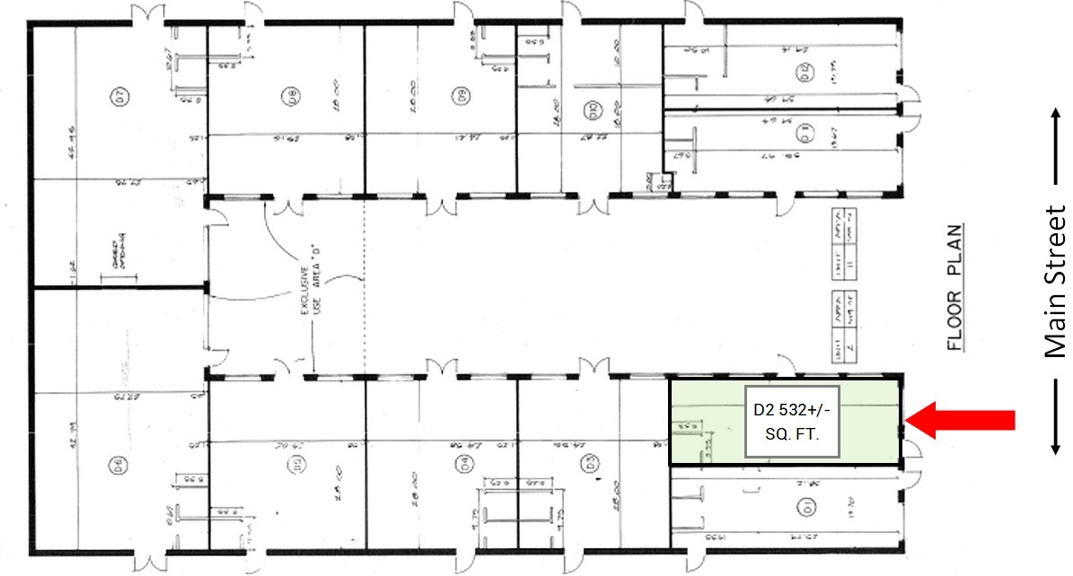
569 Main St, Unit D2, Hyannis, MA: 532+/- Sq. Ft. Office / Retail Condo Unit for Sale

569 Main St, Hyannis, MA 02601, USA

Details

Retail Investment Condo for Sale

569 Main Street, Unit 2 (Unit D2) – Hyannis, Massachusetts

Fully Leased Downtown Hyannis Retail Investment

Commercial Realty Advisors is pleased to offer 569 Main Street, Unit 2 (Unit D2), Hyannis, MA for sale as a fully leased retail condominium investment in the heart of downtown Hyannis.

Located along the highly traveled Main Street retail corridor, this ±532 square foot commercial unit is currently occupied by a mobile phone sales and repair retailer, providing an investor with immediate in-place tenancy within one of Cape Cod’s most active commercial districts.

Positioned among restaurants, retail shops, entertainment venues, and seasonal tourist activity, the property benefits from consistent pedestrian traffic, strong year-round visibility, and the economic energy of downtown Hyannis.

The unit features a bright retail showroom with extensive product display shelving, modern vinyl plank flooring, updated lighting, and a service counter area. A rear storage and workspace area supports operational needs for retail and repair services. The space has been built out specifically for retail use and offers an efficient layout that maximizes merchandising and customer flow.

According to the assessor’s records, the unit contains approximately 532 square feet of retail space and was originally constructed in 1987, with updates reflected in later improvements and tenant fit-out.

2026-fieldcard

This offering presents an opportunity for investors seeking stable retail exposure in downtown Hyannis, Cape Cod’s primary commercial hub.


Investment Highlights

  • Asking Price: $325,000

  • Property Type: Retail Condominium

  • Unit Size: ±532 SF

  • Status: Fully Leased Investment

  • Location: Downtown Hyannis retail district

  • Year Built: 1987

  • Zoning: Village Center / Downtown commercial area

  • Strong pedestrian and seasonal tourism traffic


Property Description

The retail unit is configured with a customer-facing sales floor featuring illuminated display walls, product shelving, and a service counter, creating a highly functional retail environment.

Additional features include:

  • Open retail showroom layout

  • Built-in merchandising displays

  • Rear workspace / storage area

  • Modern flooring and lighting

  • Prominent downtown storefront presence

  • Efficient small-format retail footprint ideal for service-oriented tenants

The current tenant utilizes the space for phone sales, accessories, and device repair, a category that benefits from steady demand driven by everyday consumer technology needs.


Location – Downtown Hyannis

569 Main Street is located within the Hyannis Main Street commercial district, the retail and entertainment center of Cape Cod. The area serves as a hub for shopping, dining, and tourism, attracting both year-round residents and millions of seasonal visitors annually.

Nearby amenities include:

  • Restaurants, cafés, and bars

  • Retail boutiques and galleries

  • Hyannis Harbor and ferries to Martha’s Vineyard and Nantucket

  • Cape Cod Melody Tent

  • Hyannis Transportation Center

  • Numerous hotels and visitor accommodations

The property’s location provides strong exposure within Cape Cod’s most active downtown retail environment.


Investment Opportunity

Fully leased retail condominiums in downtown Hyannis are rarely available for purchase, particularly at this approachable price point.

This offering presents investors with the opportunity to acquire a turnkey retail asset with in-place tenancy, positioned within one of Cape Cod’s most established commercial districts.


📞 For additional information or to schedule a private showing:
Commercial Realty Advisors
508-862-9000

Share this Property!

Plans

569 Main St Unit 2

Attachments